Ufficio in affitto

Foggia, Via Napoli - Ospedale
€ 650 / mese
3 locali 3 locali
83 Mq 83 Mq
1 bagno 1 bagno

Ufficio in affitto

Foggia, Via Napoli - Ospedale

Descrizione annuncio

UBICAZIONE E CONTESTO. L'immobile è ubicato in Via Napoli, nelle vicinanze dell'ospedale, zona ben servita ed in stabile signorile dotato di giardino condominiale. Facilità di parcheggio.

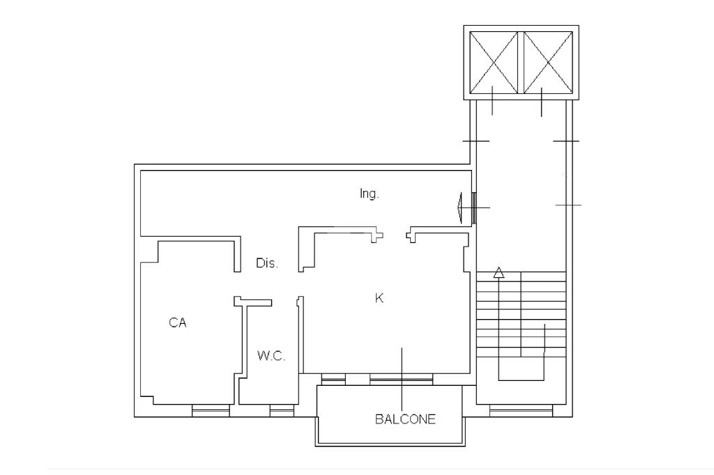
COSA SAPERE SULL'IMMOBILE. L'ufficio che proponiamo in locazione ha una superficie di circa 83 mq ed è composto da una sala d'attesa, due camere operative, servizi igienici ed un ampio balcone. In ottimo stato di manutenzione con impianto elettrico ed idrico a norma. Pavimentazione omogenea in marmo.

PARTICOLARITA' E DESCRIZIONE. Zona ad alto transito pedonale e veicolare, ha accesso da portone condominale, in una palazzina di soli uffici, ed è posto al secondo piano. Dotato di due ascensori. Ideale per studi professionali e/o medici.

Ci segua anche su Facebook e su Instagram, cliccando 'mi piace' sulla pagina Agenzia Tecnocasa Impresa Foggia. Può contattarci anche attraverso il nostro canale Whatsapp al numero 0881.630117 per avere maggiori informazioni sui nostri immobili. Scarichi gratuitamente anche l'App Tecnocasa sul suo smartphone e sarà sempre aggiornato sulle nostre proposte di vendita e locazione. Nel caso in cui avesse bisogno di una consulenza reddituale per accedere ad una richiesta di mutuo possiamo esserle d'aiuto anche su questo poiché è possibile, previo appuntamento, direttamente nella nostra agenzia, incontrare un Collaboratore di Kiron Partner SpA la società di mediazione creditizia del Gruppo Tecnocasa.

LA CONSULENZA E' GRATUITA.

Mostra tutto

Nelle vicinanze

Trasporto pubblico Trasporto pubblico
stazione di Foggia
stazione di Foggia
2,2 Km
Via Napoli (S. Salvatore)
Via Napoli (S. Salvatore)
80 m
Via Napoli (Scienze Agrarie)
Via Napoli (Scienze Agrarie)
170 m
Ricariche auto elettriche Ricariche auto elettriche
Enel PAN Foggia Viale degli Aviatori
1,5 Km
CITYCAR S.r.l. | EnelX
2,4 Km
Concessionario Nissan Renauto S.P.A.
2,7 Km
Daunia Soccorso Foggia | EnelX
2,8 Km
Scuole Scuole
Plesso Nuovo
130 m
Plesso Vecchio
200 m
Scuola media statale "PIO XII"
270 m
ITC "O. Notarangelo"
460 m
Liceo Scientifico "A. Volta"
460 m
Farmacia Farmacia
D.ssa Prencipe
640 m
Sacro Cuore
900 m
Sant'Anna
1,0 Km
Farmacia Centrale
1,1 Km
Farmacia Santa Rita
1,1 Km
Ospedali Ospedali
Ospedali Riuniti di Foggia
640 m
Medicina Universitaria
940 m
Clinica Colonnello D'Avanzo
1,2 Km
Casa della Divina Provvidenza Ospedale "Don Uva"
1,3 Km
Casa di Cura "Maria Grazia Barone"
1,3 Km
Supermercati Supermercati
Supermercati dok
360 m
La Prima Srl
720 m
Penny
750 m
MD Discount
930 m
Lidl
960 m
Negozi Negozi
Panificio Pizzeria Sergio Ricci
900 m
La Bontà delle Tre Spighe
970 m
L'Angolo del Fornaio
990 m
Panificio Pizzeria Caposeno
1,2 Km
I Figli di Papà
1,3 Km
Bar Bar
Bar, pasticceria, gelateria "Dolce Grazia"
260 m
Cafes de Paris
1,1 Km
Gate Caffè
1,2 Km
Bar
1,2 Km
Smallest chicchetteria
1,2 Km
Ristoranti Ristoranti
Battista...L'arte della Pizza
380 m
Bruschetteria - Paninoteca di Mario Forcella
640 m
Terra Arsa
960 m
Capriccio all'Italiana
980 m
Sacro Cuore
1,0 Km
Mostra tutto

Caratteristiche

Rif.:
61212395
Piano:
2 di 5 con ascensore (Piano medio)
Balconi:
1
Condizionamento:
Autonomo
Ascensore:
Riscaldamento:
Autonomo
Mostra tutto
Prezzo Prezzo
€ 650 / mese
Spese annue Spese annue
€ 600

Classe Energetica

G
G
G
G
G
G
G
G
G
EP globale non rinnovabile:
197.16 kW h/m² anno
EP globale rinnovabile:
197.16 kW h/m² anno
EP invernale del fabbricato:
EP estiva del fabbricato:
Anno di costruzione:
2001
Riscaldamento:
Autonomo
Tipo impianto:
A radiatori
Tipo alimentazione:
Metano

Ti interessa visionare l'immobile?

Fissa un appuntamento  Fissa un appuntamento

Richiedi informazioni

Clicca su Leggi per aprire l'informativa
* Questi campi sono obbligatori
Affiliato
Studio Manfredonia Centro D.I.
Viale Colombo, 6/F 71121 Foggia (FG)

Il nostro staff


  • Lorenzo Del Vecchio
    Affiliato

  • Martina Pia Longo
    Coordinatrice

  • Marino Talia
    Collaboratore
Viale Colombo, 6/F 71121 Foggia (FG)
Zona: Foggia
Mostra su mappa
Orari: da lunedì a venerdì 09,00 - 13,00 /15,00 - 19,15; sabato 09,00 - 12,00; domenica su appuntamento.
Affiliato
Studio Manfredonia Centro D.I.
Viale Colombo, 6/F 71121 Foggia (FG)

2026 Tecnocasa Franchising S.p.A. - P. IVA 08365160152 - Via Monte Bianco 60/A 20089 Rozzano (MI). Ogni agenzia ha un proprio titolare ed è autonoma. Privacy policy | Policy utilizzo | Cookie policy