Negozio in affitto

Foggia, Via Lucera - Parco San Felice
1 locale 1 locale
483 Mq 483 Mq
2 bagni 2 bagni

Negozio in affitto

Foggia, Via Lucera - Parco San Felice

Descrizione annuncio

UBICAZIONE E CONTESTO.
L’immobile è ubicato in zona Parco San Felice, e più precisamente, alla Via Lucera, ad alto transito pedonale e veicolare.

COSA SAPERE SULL'IMMOBILE.
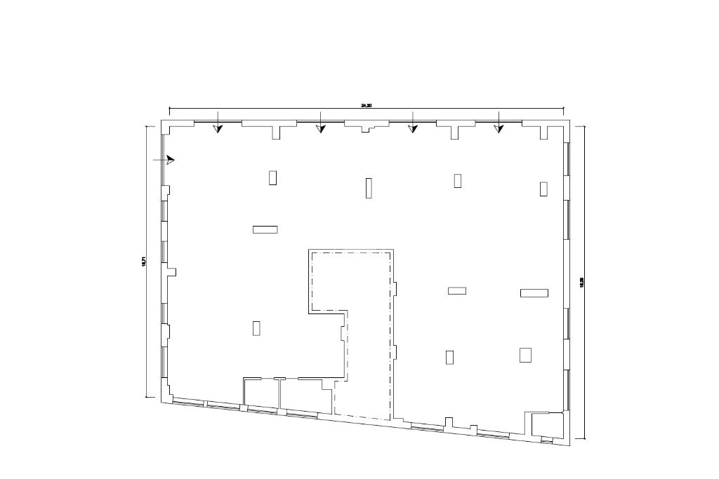
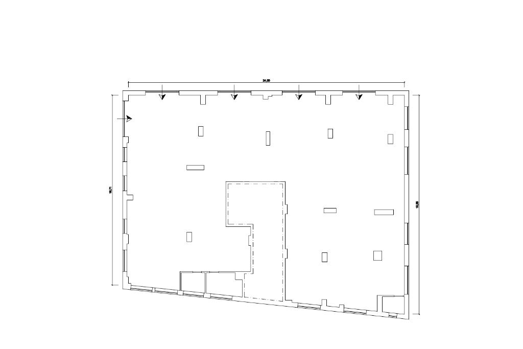
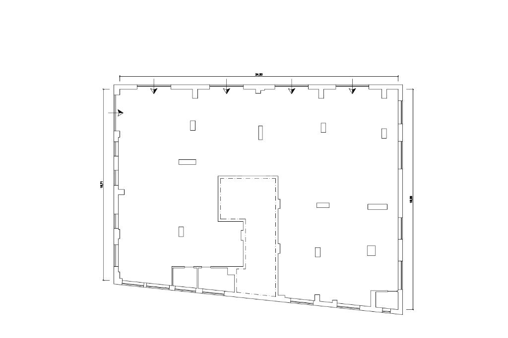
Il negozio che proponiamo in locazione ha una superficie totale di circa 430 mq, ed è composto da un ampio open space con doppi servizi igienici. In buono stato di manutenzione con impianto elettrico ed idrico a norma.

PARTICOLARITA' E DESCRIZIONE.
Situato in una zona fortemente commerciale e residenziale, l’immobile è ad alta visibilità grazie alle sue quattro ampie vetrine fronte strada, ed ulteriore vetrina in cortile. Dotato di parcheggio ad uso esclusivo. Fruibile per svariate attività.

Ci segua anche su Facebook e su Instagram, cliccando 'mi piace' sulla pagina Agenzia Tecnocasa Impresa Foggia.

Può contattarci anche attraverso il nostro canale Whatsapp al numero 0881.630117 per avere maggiori informazioni sui nostri immobili.

Scarichi gratuitamente anche l'App Tecnocasa sul suo smartphone e sarà sempre aggiornato sulle nostre proposte di vendita e locazione.

Nel caso in cui avesse bisogno di una consulenza reddituale per accedere ad una richiesta di mutuo possiamo esserle d'aiuto anche su questo poiché è possibile, previo appuntamento, direttamente nella nostra agenzia, incontrare un Collaboratore di Kiron Partner SpA la società di mediazione creditizia del Gruppo Tecnocasa.

LA CONSULENZA E' GRATUITA.

Mostra tutto

Nelle vicinanze

Trasporto pubblico Trasporto pubblico
stazione di Foggia
stazione di Foggia
2,0 Km
Via Lucera (Sacro Cuore)
Via Lucera (Sacro Cuore)
90 m
V.le Giotto (M. Altamura)
V.le Giotto (M. Altamura)
110 m
Ricariche auto elettriche Ricariche auto elettriche
Enel PAN Foggia Viale degli Aviatori
2,3 Km
Daunia Soccorso Foggia | EnelX
2,3 Km
Concessionario Nissan Renauto S.P.A.
2,5 Km
CITYCAR S.r.l. | EnelX
3,0 Km
Scuole Scuole
Scuola Elementare "Giulia Catalano"
310 m
Ugo Foscolo
320 m
Scuola dell'Infanzia "Giulia Catalano"
350 m
Istituto Suore pie Operaie S. Giuseppe
410 m
Istituto Comprensivo Santa Chiara, Pascoli e Altamura
490 m
Farmacia Farmacia
Sacro Cuore
20 m
D.ssa Prencipe
270 m
Farmacia Candelaro - Mazzamurro
420 m
Sant'Anna
720 m
Farmacia Centrale
880 m
Ospedali Ospedali
Casa della Divina Provvidenza Ospedale "Don Uva"
470 m
Dipartimento Dipendenze Patologiche
720 m
Ospedali Riuniti di Foggia
1,1 Km
Medicina Universitaria
1,6 Km
Casa di Cura "Maria Grazia Barone"
1,7 Km
Supermercati Supermercati
Sigma
600 m
Supermercati dok
660 m
MD
710 m
EuroSpin
860 m
Penny
980 m
Negozi Negozi
Panificio Pizzeria Sergio Ricci
20 m
Panificio Pizzeria Caposeno
410 m
La Bontà delle Tre Spighe
610 m
Panetteria Pizzeria Pasticceria
740 m
Oversize
750 m
Bar Bar
Gate Caffè
430 m
Bar, pasticceria, gelateria "Dolce Grazia"
780 m
Smallest chicchetteria
1,0 Km
Bar Duetto
1,3 Km
La ghiacciaia
1,4 Km
Ristoranti Ristoranti
Sacro Cuore
290 m
Bruschetteria - Paninoteca di Mario Forcella
560 m
Capriccio all'Italiana
640 m
Terra Arsa
780 m
I Cavalieri
980 m
Mostra tutto

Caratteristiche

Rif.:
61142677
Piano:
Terra di 5
Totale piani:
5
Posti auto:
10
Condizionamento:
Autonomo
Ascensore:
No
Mostra tutto
Prezzo Prezzo
€ 2.700 / mese
Spese annue Spese annue
€ 2.000
Anche in vendita a

Classe Energetica

D
D
D
D
D
D
D
D
D
EP globale non rinnovabile:
324.23 kW h/m² anno
EP globale rinnovabile:
324.23 kW h/m² anno
EP invernale del fabbricato:
EP estiva del fabbricato:
Anno di costruzione:
1995
Riscaldamento:
Autonomo
Tipo impianto:
A radiatori
Tipo alimentazione:
Metano

Ti interessa visionare l'immobile?

Fissa un appuntamento  Fissa un appuntamento

Richiedi informazioni

Clicca su Leggi per aprire l'informativa
* Questi campi sono obbligatori
Affiliato
Studio Manfredonia Centro D.I.
Viale Colombo, 6/F 71121 Foggia (FG)

Il nostro staff


  • Lorenzo Del Vecchio
    Affiliato

  • Martina Pia Longo
    Coordinatrice

  • Marino Talia
    Collaboratore
Viale Colombo, 6/F 71121 Foggia (FG)
Zona: Foggia
Mostra su mappa
Orari: da lunedì a venerdì 09,00 - 13,00 /15,00 - 19,15; sabato 09,00 - 13,00; domenica su appuntamento.
Affiliato
Studio Manfredonia Centro D.I.
Viale Colombo, 6/F 71121 Foggia (FG)

2026 Tecnocasa Franchising S.p.A. - P. IVA 08365160152 - Via Monte Bianco 60/A 20089 Rozzano (MI). Ogni agenzia ha un proprio titolare ed è autonoma. Privacy policy | Policy utilizzo | Cookie policy