Negozio in affitto

Foggia, Via Benedetto Croce - Ospedale
€ 2.300 / mese
4 locali 4 locali
290 Mq 290 Mq
2 bagni 2 bagni

Negozio in affitto

Foggia, Via Benedetto Croce - Ospedale

Descrizione annuncio

UBICAZIONE E CONTESTO.
L’immobile è ubicato nella zona Ospedale, e più precisamente, alla Via Benedetto Croce, nelle vicinanze della Piscina Comunale, ad alto impatto commerciale.

COSA SAPERE SULL'IMMOBILE.
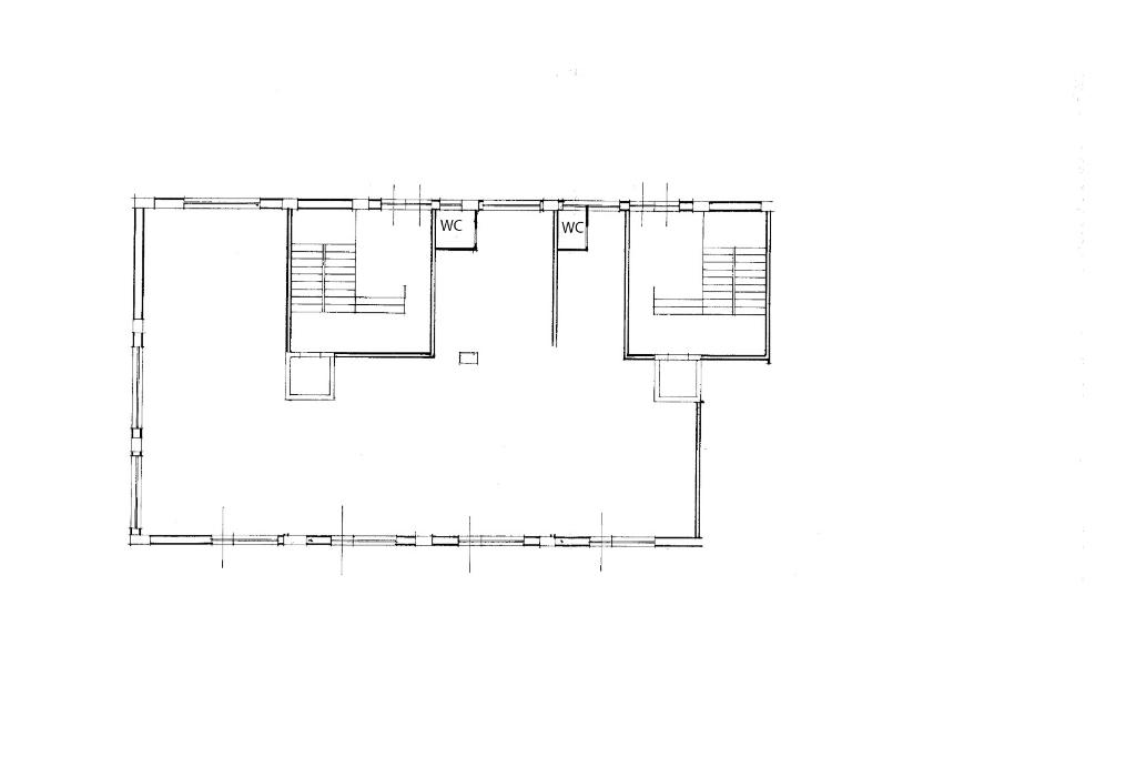
Il negozio che proponiamo in locazione ha una superficie di circa 290 mq, ed è composto da un ampio open space con doppi servizi igienici. In buono stato di manutenzione con impianto elettrico ed idrico a norma. Dotato di due celle frigo, attacco gas, allarme e videosorveglianza.

PARTICOLARITA' E DESCRIZIONE.
Situato in una zona fortemente commerciale e residenziale, l’immobile è ad alta visibilità grazie alle sue quattro vetrine fronte strada. Fruibile per svariate attività commerciali.

Ci segua anche su Facebook e su Instagram, cliccando 'mi piace' sulla pagina Agenzia Tecnocasa Impresa Foggia.

Può contattarci anche attraverso il nostro canale Whatsapp al numero 0881.630117 per avere maggiori informazioni sui nostri immobili.

Scarichi gratuitamente anche l'App Tecnocasa sul suo smartphone e sarà sempre aggiornato sulle nostre proposte di vendita e locazione.

Nel caso in cui avesse bisogno di una consulenza reddituale per accedere ad una richiesta di mutuo possiamo esserle d'aiuto anche su questo poiché è possibile, previo appuntamento, direttamente nella nostra agenzia, incontrare un Collaboratore di Kiron Partner SpA la società di mediazione creditizia del Gruppo Tecnocasa.

LA CONSULENZA E' GRATUITA.

Mostra tutto

Nelle vicinanze

Trasporto pubblico Trasporto pubblico
stazione di Foggia
stazione di Foggia
2,0 Km
Via Napoli (S. Salvatore)
Via Napoli (S. Salvatore)
80 m
Via Vittime Civili (Centro Salute)
Via Vittime Civili (Centro Salute)
160 m
Ricariche auto elettriche Ricariche auto elettriche
Enel PAN Foggia Viale degli Aviatori
1,5 Km
CITYCAR S.r.l. | EnelX
2,6 Km
Concessionario Nissan Renauto S.P.A.
2,6 Km
Daunia Soccorso Foggia | EnelX
2,6 Km
Scuole Scuole
Plesso Nuovo
240 m
Plesso Vecchio
310 m
Scuola media statale "PIO XII"
320 m
Scuola Edmondo De Amicis
420 m
Scuola Media "Moscati"
500 m
Farmacia Farmacia
D.ssa Prencipe
580 m
Sacro Cuore
830 m
Sant'Anna
870 m
Farmacia Centrale
990 m
Farmacia del Leone
1,0 Km
Ospedali Ospedali
Ospedali Riuniti di Foggia
760 m
Medicina Universitaria
1,1 Km
Clinica Colonnello D'Avanzo
1,2 Km
Casa di Cura "Maria Grazia Barone"
1,2 Km
Casa della Divina Provvidenza Ospedale "Don Uva"
1,2 Km
Supermercati Supermercati
Supermercati dok
410 m
La Prima Srl
700 m
Penny
820 m
MD Discount
930 m
Lidl
1,0 Km
Negozi Negozi
Panificio Pizzeria Sergio Ricci
840 m
La Bontà delle Tre Spighe
850 m
L'Angolo del Fornaio
850 m
Panificio Pizzeria Caposeno
1,1 Km
I Figli di Papà
1,1 Km
Bar Bar
Bar, pasticceria, gelateria "Dolce Grazia"
340 m
Cafes de Paris
1,0 Km
Gate Caffè
1,1 Km
Smallest chicchetteria
1,1 Km
Bar Duetto
1,2 Km
Ristoranti Ristoranti
Battista...L'arte della Pizza
510 m
Bruschetteria - Paninoteca di Mario Forcella
680 m
Terra Arsa
830 m
Capriccio all'Italiana
860 m
Sacro Cuore
910 m
Mostra tutto

Caratteristiche

Rif.:
61107108
Piano:
Terra di 8
Totale piani:
8
Condizionamento:
Autonomo
Ascensore:
No
Riscaldamento:
Autonomo
Mostra tutto
Prezzo Prezzo
€ 2.300 / mese
Spese annue Spese annue
€ 600

Classe Energetica

G
G
G
G
G
G
G
G
G
EP globale non rinnovabile:
195.36 kW h/m² anno
EP globale rinnovabile:
195.36 kW h/m² anno
EP invernale del fabbricato:
EP estiva del fabbricato:
Anno di costruzione:
1990
Riscaldamento:
Autonomo
Tipo impianto:
A radiatori
Tipo alimentazione:
Metano

Ti interessa visionare l'immobile?

Fissa un appuntamento  Fissa un appuntamento

Richiedi informazioni

Clicca su Leggi per aprire l'informativa
* Questi campi sono obbligatori
Affiliato
Studio Manfredonia Centro D.I.
Viale Colombo, 6/F 71121 Foggia (FG)

Il nostro staff


  • Lorenzo Del Vecchio
    Affiliato

  • Martina Pia Longo
    Coordinatrice

  • Marino Talia
    Collaboratore
Viale Colombo, 6/F 71121 Foggia (FG)
Zona: Foggia
Mostra su mappa
Orari: da lunedì a venerdì 09,00 - 13,00 /15,00 - 19,15; sabato 09,00 - 13,00; domenica su appuntamento.
Affiliato
Studio Manfredonia Centro D.I.
Viale Colombo, 6/F 71121 Foggia (FG)

2026 Tecnocasa Franchising S.p.A. - P. IVA 08365160152 - Via Monte Bianco 60/A 20089 Rozzano (MI). Ogni agenzia ha un proprio titolare ed è autonoma. Privacy policy | Policy utilizzo | Cookie policy