Capannone in vendita

Foggia, Strada del Salice - Zona Mongolfiera
€ 250.000
3 locali 3 locali
1277 Mq 1277 Mq
3 bagni 3 bagni

Capannone in vendita

Foggia, Strada del Salice - Zona Mongolfiera

Descrizione annuncio

UBICAZIONE E CONTESTO. L’immobile è ubicato a circa 1 km dall'aeroporto, e più precisamente, sulla Strada del Salice Vecchio al km 4.


COSA SAPERE SULL'IMMOBILE.
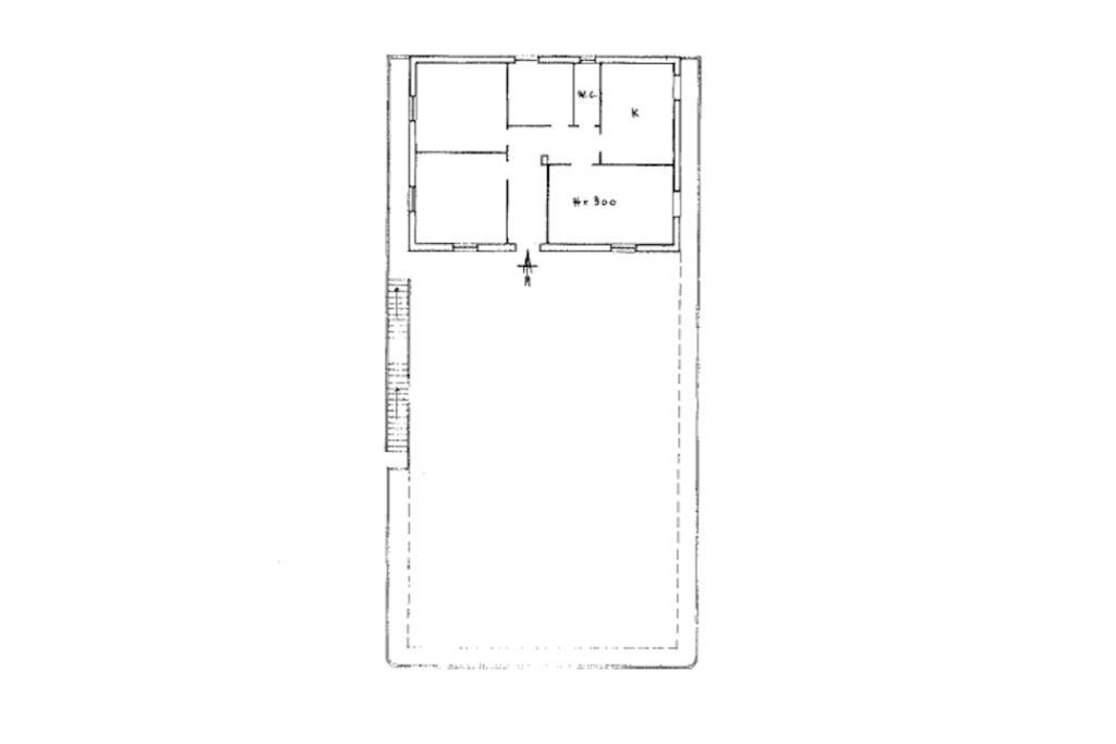
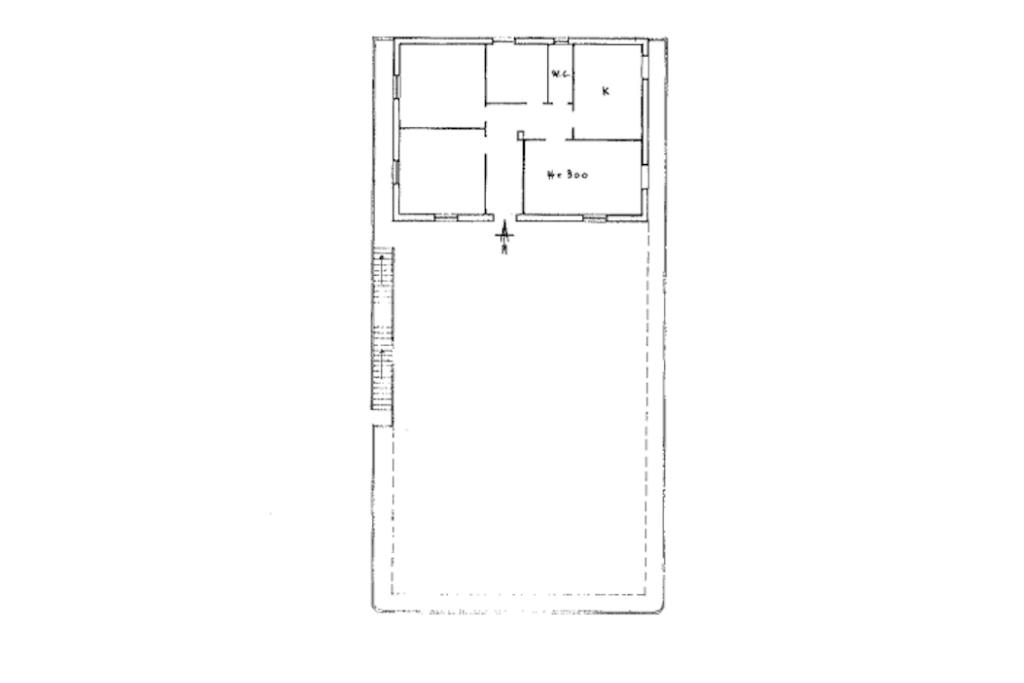
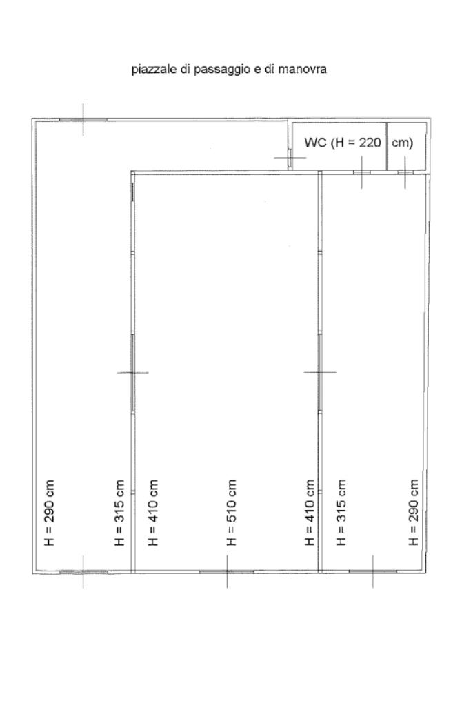
Il fabbricato che proponiamo in vendita è composto da due capannoni rispettivamente di mq 423 ca composto da un ampio open space, con ufficio, magazzino e servizi e mq 714 ca con un unico ambiente con servizi in muratura e due strutture laterali in metallo e copertura in pannelli multistrato, oltre che un appartamento di mq 140 con annesso terrazzo di mq 280 sito al primo piano, al quale si accede tramite una scala esterna. Il primo capannone ha due accessi anteriori e due accessi posteriori con un'altezza massima di 4,10 metri mentre il secondo capannone ha tre accessi anteriori ed un accesso posteriore con un'altezza massima di 5,10 metri. Il complesso di circa 3.000 mq è interamente recintato con un unico accesso fronte strada ed è dotato di piazzale esterno.

PARTICOLARITA' E DESCRIZIONE.
La struttura, grazie alla sua posizione strategica, garantisce un facile accesso alle principali vie di comunicazione. Gli spazi interni di entrambi i capannoni sono versatili e possono essere adattati per gli usi desiderati, una soluzione ideale per chi cerca funzionalità e praticità.

Ci segua anche su Facebook e su Instagram, cliccando 'mi piace' sulla pagina Agenzia Tecnocasa Impresa Foggia.

Può contattarci anche attraverso il nostro canale Whatsapp al numero 0881.630117 per avere maggiori informazioni sui nostri immobili.

Scarichi gratuitamente anche l'App Tecnocasa sul suo smartphone e sarà sempre aggiornato sulle nostre proposte di vendita e locazione.

Nel caso in cui avesse bisogno di una consulenza reddituale per accedere ad una richiesta di mutuo possiamo esserle d'aiuto anche su questo poiché è possibile, previo appuntamento, direttamente nella nostra agenzia, incontrare un Collaboratore di Kiron Partner SpA la società di mediazione creditizia del Gruppo Tecnocasa.

LA CONSULENZA E' GRATUITA.

Mostra tutto

Nelle vicinanze

Trasporto pubblico Trasporto pubblico
Via Fares
Via Fares
2,7 Km
Via Berlinguer
Via Berlinguer
2,8 Km
Scuole Scuole
Scuola Elementare Vittorino da Feltre
2,5 Km
Scuola materna comunale
2,7 Km
Liceo Scientifico "G. Marconi"
2,9 Km
Scuola Media "N. Zingarelli"
3,0 Km
Asilo nido "Scoletta Gaia"
3,0 Km
Farmacia Farmacia
Farmacia
2,7 Km
Ospedali Ospedali
Clinica S. Francesco
2,6 Km
Supermercati Supermercati
D'Ambrosio Beverfood Sas
2,0 Km
Supermercati DOC
2,6 Km
Supermercati
2,9 Km
Ipercoop
3,0 Km
Negozi Negozi
Globo Foggia
760 m
Negozi
2,7 Km
Bar Bar
Bar
1,3 Km
Zapoj
2,9 Km
Ristoranti Ristoranti
Cochet Grillee
2,6 Km
Pizzeria Delirio
2,8 Km
Mostra tutto

Caratteristiche

Rif.:
61167945
Piano:
Terra di 1
Totale piani:
1
Condizionamento:
Autonomo
Ascensore:
No
Riscaldamento:
Autonomo
Mostra tutto
Prezzo Prezzo
€ 250.000
Rata mutuo Rata mutuo
€ 1.185 / mese
Spese annue Spese annue
€ 1
Proponi il tuo prezzoProponi il tuo prezzo

Classe Energetica

G
G
G
G
G
G
G
G
G
EP globale non rinnovabile:
136.17 kW h/m² anno
EP globale rinnovabile:
136.17 kW h/m² anno
EP invernale del fabbricato:
EP estiva del fabbricato:
Anno di costruzione:
1992
Riscaldamento:
Autonomo
Tipo impianto:
A radiatori
Tipo alimentazione:
Metano

Ti interessa visionare l'immobile?

Fissa un appuntamento  Fissa un appuntamento

Richiedi informazioni

Clicca su Leggi per aprire l'informativa
* Questi campi sono obbligatori

Calcola il tuo mutuo

Semplice e senza impegno
Anticipo

( % )
Mutuo

( % )

pochi semplici passi

inserisci i tuoi dati
Questionario completato
Grazie per aver richiesto un appuntamento senza impegno con un nostro Consulente del Credito e Assicurativo.

Hai inserito correttamente tutti i dati necessari e a breve riceverai una e-mail con un link da convalidare per inviare i tuoi dati.
Affiliato
Studio Manfredonia Centro D.I.
Viale Colombo, 6/F 71121 Foggia (FG)

Il nostro staff


  • Lorenzo Del Vecchio
    Affiliato

  • Martina Pia Longo
    Coordinatrice

  • Marino Talia
    Collaboratore
Viale Colombo, 6/F 71121 Foggia (FG)
Zona: Foggia
Mostra su mappa
Orari: da lunedì a venerdì 09,00 - 13,00 /15,00 - 19,15; sabato 09,00 - 12,00; domenica su appuntamento.
Affiliato
Studio Manfredonia Centro D.I.
Viale Colombo, 6/F 71121 Foggia (FG)

2026 Tecnocasa Franchising S.p.A. - P. IVA 08365160152 - Via Monte Bianco 60/A 20089 Rozzano (MI). Ogni agenzia ha un proprio titolare ed è autonoma. Privacy policy | Policy utilizzo | Cookie policy