Capannone in vendita

Foggia, via Cerignola KM 3
€ 545.000
4 locali 4 locali
20000 Mq 20000 Mq

Capannone in vendita

Foggia, via Cerignola KM 3

Descrizione annuncio

UBICAZIONE E CONTESTO.
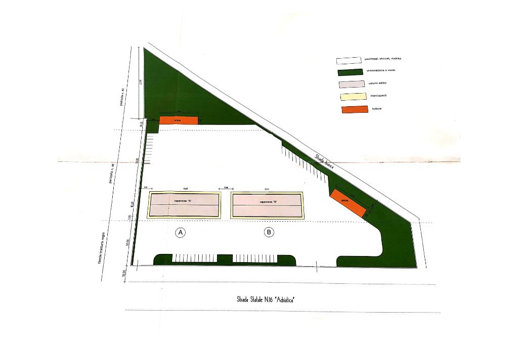
Situato fronte statale SS16 su un lotto complessivo di 20.000 mq, il complesso che ospita il capannone si trova sul fronte strada della SS16, nei pressi della città di Foggia ed a pochissimi km dalla zona ASI e di stabilimenti come 'BARILLA', 'FPT' ed altre grandi aziende; data la sua posizione, l'accesso è comodo anche per mezzi pesanti e la visibilità dello stesso è altissima. Vicinissimo alle arterie per la A/14 e la A/16.

COSA SAPERE SULL'IMMOBILE.
Il plesso in oggetto si presta particolarmente di attività artigianali e/o industriali, esso è posto su una via (via Cerignola o SS16) altamente trafficata: da uno studio della mobilità urbana cittadina, rilevato il passaggio di 10.000 veicoli giornalieri.

PARTICOLARITA' E DESCRIZIONE.
Il complesso con destinazione in concessione artigianale che proponiamo in vendita ha una superficie utile di 1.600 metri quadrati coperti con vari ingressi sia sul fronte che laterali e un'altezza interna che va dai 4,5 ai 5,5 mt sottotrave: costruzione in prefabbricati, con tetto nuovo e internamente da completare.
L'intero lotto è recintato su tre lati con recinzione in laterizio leggero+cancellate e sul davanti solo con cancellate. Dotato di due uscite fronte strada, si presta particolarmente a carico e scarico merci, manovra TIR e mezzi pesanti e leggeri. Allacciamento utenze da completare.

Ci segua anche su Facebook e su Instagram, cliccando 'mi piace' sulla pagina Agenzia Tecnocasa Impresa Foggia.

Può contattarci anche attraverso il nostro canale Whatsapp al numero 351.5755247 per avere maggiori informazioni sui nostri immobili.

Scarichi gratuitamente anche l'App Tecnocasa sul suo smartphone e sarà sempre aggiornato sulle nostre proposte di vendita e locazione.

Nel caso in cui avesse bisogno di una consulenza reddituale per accedere ad una richiesta di mutuo possiamo esserle d'aiuto anche su questo poiché è possibile, previo appuntamento, direttamente nella nostra agenzia, incontrare un Collaboratore di Kiron Partner SpA la società di mediazione creditizia del Gruppo Tecnocasa.

LA CONSULENZA E' GRATUITA.

Mostra tutto

Nelle vicinanze

Trasporto pubblico Trasporto pubblico
stazione di Foggia
stazione di Foggia
1,0 Km
XX Settembre
XX Settembre
50 m
Municipio
Municipio
110 m
Ricariche auto elettriche Ricariche auto elettriche
Enel PAN Foggia Viale degli Aviatori
1,5 Km
Concessionario Nissan Renauto S.P.A.
1,6 Km
Daunia Soccorso Foggia | EnelX
1,7 Km
Scuole Scuole
Accademia di Belle Arti
130 m
Dipartimento Di Studi Umanistici Facoltà di Lettere
390 m
Università degli Studi di Foggia
400 m
Università Degli Studi Di Foggia
420 m
Istituto Comprensivo Parisi - De Sanctis
520 m
Farmacia Farmacia
Farmacia del Leone
30 m
Farmacia de Mauro
280 m
Farmacia Centrale
340 m
Farmacia San Giovanni
410 m
Sant'Anna
450 m
Ospedali Ospedali
Casa di Cura "Maria Grazia Barone"
760 m
Dipartimento Dipendenze Patologiche
960 m
Clinica Colonnello D'Avanzo
960 m
Casa della Divina Provvidenza Ospedale "Don Uva"
1,6 Km
Ospedali Riuniti di Foggia
1,7 Km
Supermercati Supermercati
La Prima
620 m
Convì
690 m
Sigma
980 m
Alter Discount
1,0 Km
Dok Supermercati
1,1 Km
Negozi Negozi
United Colors of Benetton
160 m
Oltre
170 m
Class
170 m
Tezenis
170 m
Negozi
170 m
Bar Bar
Bar Duetto
200 m
Smallest chicchetteria
260 m
La ghiacciaia
290 m
Caffetteria napoletana
460 m
Gelateria Gabrielino
480 m
Ristoranti Ristoranti
Ristorante enoteca Leonardo
230 m
I Cavalieri
350 m
Terra Arsa
360 m
Kaminetto
430 m
Capriccio all'Italiana
530 m
Mostra tutto

Caratteristiche

Rif.:
40357328
Piano:
Terra di 1
Totale piani:
1
Posti auto:
10
Condizionamento:
Assente
Ascensore:
No
Mostra tutto
Prezzo Prezzo
€ 545.000
Rata mutuo Rata mutuo
€ 2.573 / mese
Spese annue Spese annue
€ 0
Proponi il tuo prezzoProponi il tuo prezzo

Classe Energetica

Questo immobile è esente da classe energetica
Anno di costruzione:
2006
Riscaldamento:
Assente

Ti interessa visionare l'immobile?

Fissa un appuntamento  Fissa un appuntamento

Richiedi informazioni

Clicca su Leggi per aprire l'informativa
* Questi campi sono obbligatori

Calcola il tuo mutuo

Semplice e senza impegno
Anticipo

( % )
Mutuo

( % )

pochi semplici passi

inserisci i tuoi dati
Questionario completato
Grazie per aver richiesto un appuntamento senza impegno con un nostro Consulente del Credito e Assicurativo.

Hai inserito correttamente tutti i dati necessari e a breve riceverai una e-mail con un link da convalidare per inviare i tuoi dati.
Affiliato
Studio Manfredonia Centro D.I.
Viale Colombo, 6/F 71121 Foggia (FG)

Il nostro staff


  • Lorenzo Del Vecchio
    Affiliato

  • Martina Pia Longo
    Coordinatrice

  • Marino Talia
    Collaboratore
Viale Colombo, 6/F 71121 Foggia (FG)
Zona: Foggia
Mostra su mappa
Orari: da lunedì a venerdì 09,00 - 13,00 /15,00 - 19,15; sabato 09,00 - 13,00; domenica su appuntamento.
Affiliato
Studio Manfredonia Centro D.I.
Viale Colombo, 6/F 71121 Foggia (FG)

2025 Tecnocasa Franchising S.p.A. - P. IVA 08365160152 - Via Monte Bianco 60/A 20089 Rozzano (MI). Ogni agenzia ha un proprio titolare ed è autonoma. Privacy policy | Policy utilizzo | Cookie policy