Capannone in affitto

Foggia, Via Camporeale - Zona Mongolfiera
€ 900 / mese
1 locale 1 locale
250 Mq 250 Mq
1 bagno 1 bagno

Capannone in affitto

Foggia, Via Camporeale - Zona Mongolfiera

Descrizione annuncio

UBICAZIONE E CONTESTO.
L’immobile è ubicato nella zona Mongolfiera, e più precisamente, alla Via Camporeale, nelle immediate vicinanze del Mirage, ad alto transito veicolare.

COSA SAPERE SULL'IMMOBILE.
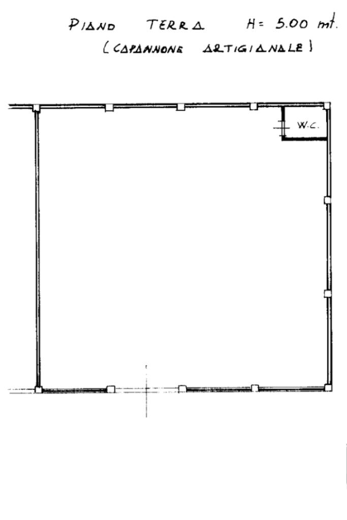
Il capannone che proponiamo in locazione ha una superficie coperta di circa 250 mq, ed è composto da un unico ambiente.

PARTICOLARITA' E DESCRIZIONE.
L’immobile è dotato di piazzale esterno privato e servizi di sorveglianza. Fruibile per svariate attività.

Ci segua anche su Facebook e su Instagram, cliccando 'mi piace' sulla pagina Agenzia Tecnocasa Impresa Foggia.

Può contattarci anche attraverso il nostro canale Whatsapp al numero 0881.630117 per avere maggiori informazioni sui nostri immobili.

Scarichi gratuitamente anche l'App Tecnocasa sul suo smartphone e sarà sempre aggiornato sulle nostre proposte di vendita e locazione.

Nel caso in cui avesse bisogno di una consulenza reddituale per accedere ad una richiesta di mutuo possiamo esserle d'aiuto anche su questo poiché è possibile, previo appuntamento, direttamente nella nostra agenzia, incontrare un Collaboratore di Kiron Partner SpA la società di mediazione creditizia del Gruppo Tecnocasa.

LA CONSULENZA E' GRATUITA.

Mostra tutto

Nelle vicinanze

Trasporto pubblico Trasporto pubblico
Trasporto pubblico
1,2 Km
Liceo Volta
Liceo Volta
1,7 Km
Ricariche auto elettriche Ricariche auto elettriche
CITYCAR S.r.l. | EnelX
1,5 Km
Enel PAN Foggia Viale degli Aviatori
1,9 Km
Scuole Scuole
Università degli Studi di Foggia - Facoltà di Agraria
1,2 Km
ITE "Blaise Pascal"
1,4 Km
Istituto Tecnico Commerciale "G. Rosati"
1,5 Km
ITC "O. Notarangelo"
1,6 Km
Liceo Scientifico "A. Volta"
1,7 Km
Farmacia Farmacia
Farmacia Santa Rita
2,1 Km
Farmacia San Marco
2,5 Km
D.ssa Prencipe
2,6 Km
Farmacia San Michele
2,7 Km
Farmacia dell'Immacolata
2,7 Km
Ospedali Ospedali
Medicina Universitaria
1,5 Km
Ospedali Riuniti di Foggia
1,6 Km
Clinica S. Francesco
1,7 Km
Clinica Colonnello D'Avanzo
2,2 Km
Casa di Cura "Maria Grazia Barone"
2,4 Km
Supermercati Supermercati
D'Ambrosio Beverfood Sas
1,1 Km
Penny
1,3 Km
Lidl
1,3 Km
Ipercoop
1,6 Km
MD Discount
1,6 Km
Negozi Negozi
Globo Foggia
2,7 Km
L'Angolo del Fornaio
2,8 Km
Panificio Pizzeria Sergio Ricci
2,8 Km
Negozi
2,9 Km
I Figli di Papà
2,9 Km
Bar Bar
Bar
1,2 Km
Bar, pasticceria, gelateria "Dolce Grazia"
2,1 Km
Cafes de Paris
2,2 Km
Caffetteria cornetteria Simonetti
2,4 Km
Bar Fiocco di neve
2,6 Km
Ristoranti Ristoranti
Villa Reale Ricevimenti
170 m
Ristorante Sala Ricevimenti Ambassador
750 m
El Matador
1,1 Km
Mangia come parli
1,3 Km
Battista...L'arte della Pizza
1,6 Km
Mostra tutto

Caratteristiche

Rif.:
61210099
Piano:
Terra di 1
Totale piani:
1
Condizionamento:
Autonomo
Ascensore:
No
Riscaldamento:
Autonomo
Mostra tutto
Prezzo Prezzo
€ 900 / mese
Spese annue Spese annue
€ 0

Classe Energetica

Questo immobile è esente da classe energetica
Anno di costruzione:
1985
Riscaldamento:
Autonomo
Tipo impianto:
A radiatori
Tipo alimentazione:
Metano

Ti interessa visionare l'immobile?

Fissa un appuntamento  Fissa un appuntamento

Richiedi informazioni

Clicca su Leggi per aprire l'informativa
* Questi campi sono obbligatori
Affiliato
Studio Manfredonia Centro D.I.
Viale Colombo, 6/F 71121 Foggia (FG)

Il nostro staff


  • Lorenzo Del Vecchio
    Affiliato

  • Martina Pia Longo
    Coordinatrice

  • Marino Talia
    Collaboratore
Viale Colombo, 6/F 71121 Foggia (FG)
Zona: Foggia
Mostra su mappa
Orari: da lunedì a venerdì 09,00 - 13,00 /15,00 - 19,15; sabato 09,00 - 12,00; domenica su appuntamento.
Affiliato
Studio Manfredonia Centro D.I.
Viale Colombo, 6/F 71121 Foggia (FG)

2026 Tecnocasa Franchising S.p.A. - P. IVA 08365160152 - Via Monte Bianco 60/A 20089 Rozzano (MI). Ogni agenzia ha un proprio titolare ed è autonoma. Privacy policy | Policy utilizzo | Cookie policy