Capannone in affitto

Foggia, Via Castelluccio - Zona Mongolfiera
€ 1.200 / mese
1 locale 1 locale
550 Mq 550 Mq

Capannone in affitto

Foggia, Via Castelluccio - Zona Mongolfiera

Descrizione annuncio

UBICAZIONE E CONTESTO.
L’immobile è ubicato a ridosso dell'Orbitale di Foggia, e più precisamente, alla Via Castelluccio, zona ad alto transito veicolare.

COSA SAPERE SULL'IMMOBILE.
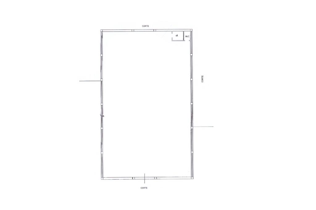
Il capannone che proponiamo in locazione è situato in un complesso recintato ove sono presenti altre attività, ha una superficie di circa 550 mq, ed è composto da un unico grande ambiente ed è in buono stato di manutenzione.

PARTICOLARITA' E DESCRIZIONE.
Ben collegato sia alla città che alla tangenziale di Foggia, l'immobile è dotato di un ampio piazzale a disposizione ed ha un'altezza massima di 5 m. Fruibile per svariate attività.

Ci segua anche su Facebook e su Instagram, cliccando 'mi piace' sulla pagina Agenzia Tecnocasa Impresa Foggia.

Può contattarci anche attraverso il nostro canale Whatsapp al numero 0881.630117 per avere maggiori informazioni sui nostri immobili.

Scarichi gratuitamente anche l'App Tecnocasa sul suo smartphone e sarà sempre aggiornato sulle nostre proposte di vendita e locazione.

Nel caso in cui avesse bisogno di una consulenza reddituale per accedere ad una richiesta di mutuo possiamo esserle d'aiuto anche su questo poiché è possibile, previo appuntamento, direttamente nella nostra agenzia, incontrare un Collaboratore di Kiron Partner SpA la società di mediazione creditizia del Gruppo Tecnocasa.

LA CONSULENZA E' GRATUITA.

Mostra tutto

Nelle vicinanze

Trasporto pubblico Trasporto pubblico
Trasporto pubblico
1,1 Km
Liceo Volta
Liceo Volta
1,9 Km
Ricariche auto elettriche Ricariche auto elettriche
Enel PAN Foggia Viale degli Aviatori
1,7 Km
CITYCAR S.r.l. | EnelX
1,9 Km
Scuole Scuole
Università degli Studi di Foggia - Facoltà di Agraria
1,5 Km
Istituto Tecnico Commerciale "G. Rosati"
1,6 Km
ITE "Blaise Pascal"
1,7 Km
ITC "O. Notarangelo"
1,7 Km
Scuola media statale "PIO XII"
1,8 Km
Farmacia Farmacia
Farmacia Santa Rita
2,0 Km
Farmacia San Marco
2,3 Km
Farmacia San Michele
2,5 Km
Farmacia
2,5 Km
Farmacia dell'Immacolata
2,6 Km
Ospedali Ospedali
Clinica S. Francesco
1,4 Km
Medicina Universitaria
1,7 Km
Ospedali Riuniti di Foggia
1,8 Km
Clinica Colonnello D'Avanzo
2,1 Km
Casa di Cura "Maria Grazia Barone"
2,4 Km
Supermercati Supermercati
D'Ambrosio Beverfood Sas
970 m
Lidl
1,3 Km
Penny
1,4 Km
Ipercoop
1,4 Km
MD Discount
1,6 Km
Negozi Negozi
Globo Foggia
2,3 Km
Negozi
2,8 Km
L'Angolo del Fornaio
2,8 Km
I Figli di Papà
2,9 Km
Tezenis
3,0 Km
Bar Bar
Bar
1,1 Km
Cafes de Paris
2,2 Km
Bar, pasticceria, gelateria "Dolce Grazia"
2,2 Km
Caffetteria cornetteria Simonetti
2,2 Km
Bar Fiocco di neve
2,4 Km
Ristoranti Ristoranti
Villa Reale Ricevimenti
540 m
Ristorante Sala Ricevimenti Ambassador
820 m
El Matador
1,0 Km
Mangia come parli
1,3 Km
Cochet Grillee
1,7 Km
Mostra tutto

Caratteristiche

Rif.:
61073849
Piano:
Terra di 1
Totale piani:
1
Condizionamento:
Autonomo
Ascensore:
No
Riscaldamento:
Autonomo
Mostra tutto
Prezzo Prezzo
€ 1.200 / mese
Spese annue Spese annue
€ 0

Classe Energetica

Questo immobile è esente da classe energetica
Anno di costruzione:
1990
Riscaldamento:
Autonomo
Tipo impianto:
A radiatori
Tipo alimentazione:
Metano

Ti interessa visionare l'immobile?

Fissa un appuntamento  Fissa un appuntamento

Richiedi informazioni

Clicca su Leggi per aprire l'informativa
* Questi campi sono obbligatori
Affiliato
Studio Manfredonia Centro D.I.
Viale Colombo, 6/F 71121 Foggia (FG)

Il nostro staff


  • Lorenzo Del Vecchio
    Affiliato

  • Martina Pia Longo
    Coordinatrice

  • Marino Talia
    Collaboratore
Viale Colombo, 6/F 71121 Foggia (FG)
Zona: Foggia
Mostra su mappa
Orari: da lunedì a venerdì 09,00 - 13,00 /15,00 - 19,15; sabato 09,00 - 13,00; domenica su appuntamento.
Affiliato
Studio Manfredonia Centro D.I.
Viale Colombo, 6/F 71121 Foggia (FG)

2025 Tecnocasa Franchising S.p.A. - P. IVA 08365160152 - Via Monte Bianco 60/A 20089 Rozzano (MI). Ogni agenzia ha un proprio titolare ed è autonoma. Privacy policy | Policy utilizzo | Cookie policy